Кав’ярня LIMONI
Назад

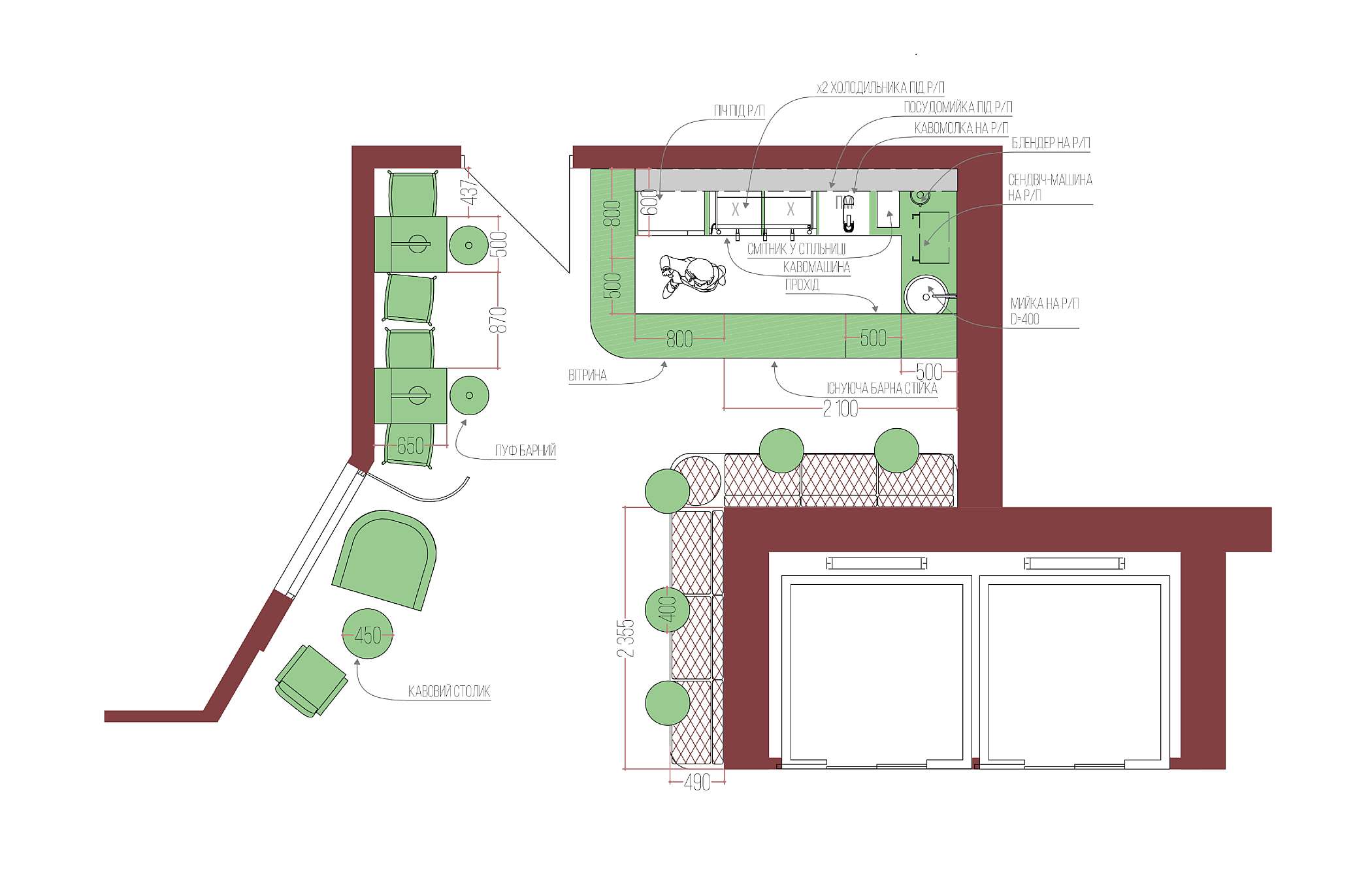
Кав’ярня LIMONI

  • Локація: м.Хмельницький, ТРЦ “MONTBLANC”
  • Площа: 25 м2
  • Рік: 2020
  • Дизайн проект кав’ярні.
  • Концепт: Домінанта легкості та грайливості.
  • Травень 2020.
  • Самий сік кольорів, простота форми, 4 зонування, ергономічне розміщення побутової техніки – 8шт.
  • Декілька варіантів по дизайну деяких ділянок проекту.
Кав’ярня LIMONI