Gastro Oma. Prague
Назад

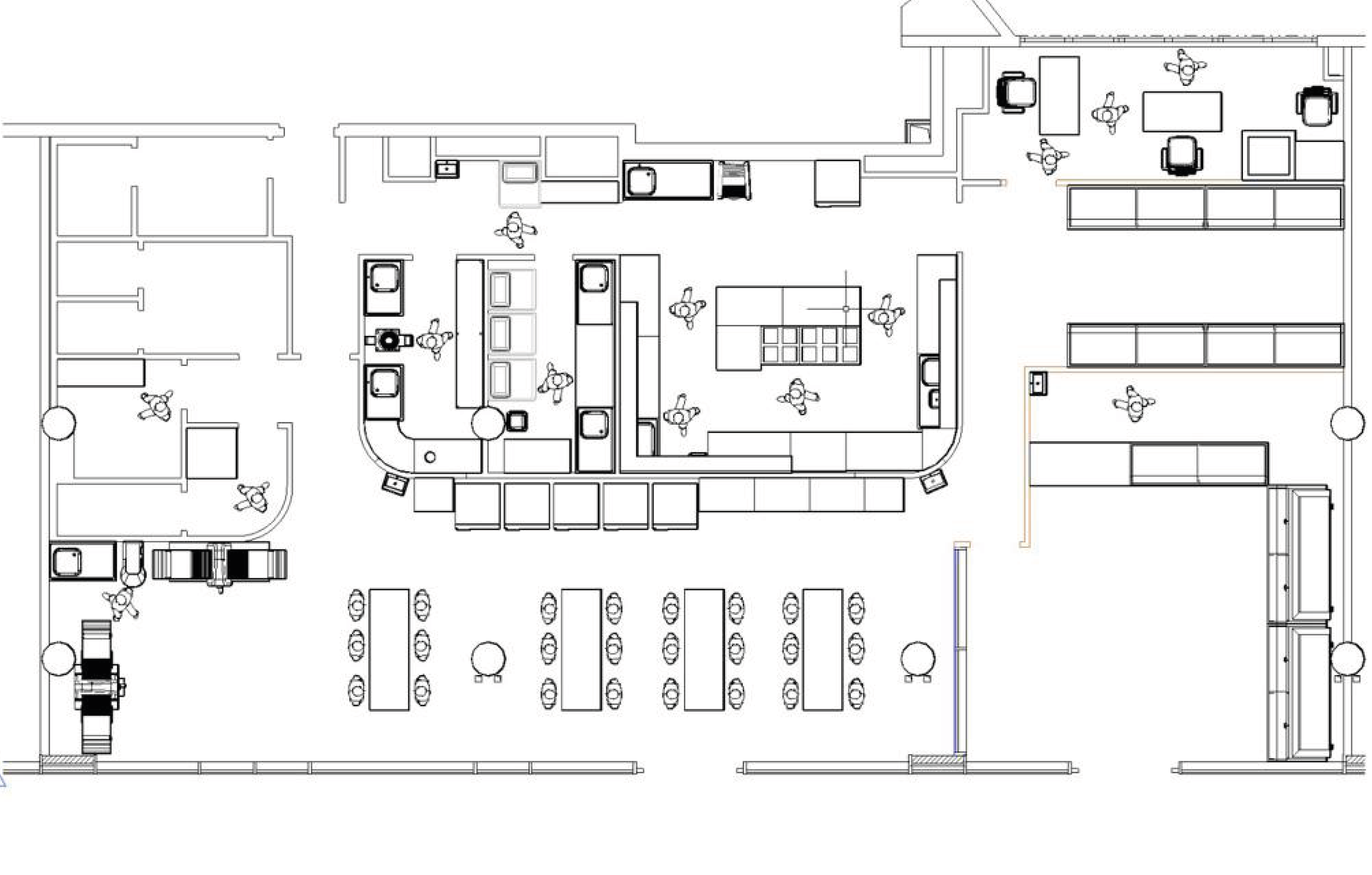
Gastro Oma. Prague

  • Локація: Прага, Чехія
  • Замовник: Власник франшизи Gastro Oma
  • Рік: 2023

 

Задизайнили наступний комерційний проєкт для франшизи з виготовлення та продажу напівфабрикатів ручної роботи "Gastro Oma" у Європі.

Основними складовими інтер'єру стали:

  • Чистота у відтінках
  • Крафтова атмосфера завдяки матеріалам та формам 
  • Відчуття стерильності у шоурумі виробництва
  • Інший рівень у концепції дизайну для магазинів такого виду бізнесу
Gastro Oma. Prague