Чайка
Назад

Чайка

🛵 Локація: Хмельницький, Україна

~

🛵 Рік: 2019

~

🛵 Емоція: Їж, пий, дизайнуй.

~

🛵 Задача: Розробити затишний, нетиповий дизайн житлового простору для сім'ї.

~

 

Слоган, який супроводжував нас протягом цього проекту. Замовники прийшли по наш стиль у дизайні. Коли перша зустріч п очинається з фрази: "Ми переглядали різні портфоліо, але ваше саме те, що ми і уявляємо в нашій квартирі", - то проект буде успішним.
Презентація планувальних рішень була обрана у той самий день. 3D презентація не потребувала корегувань. Присутні свої фішечки.

 

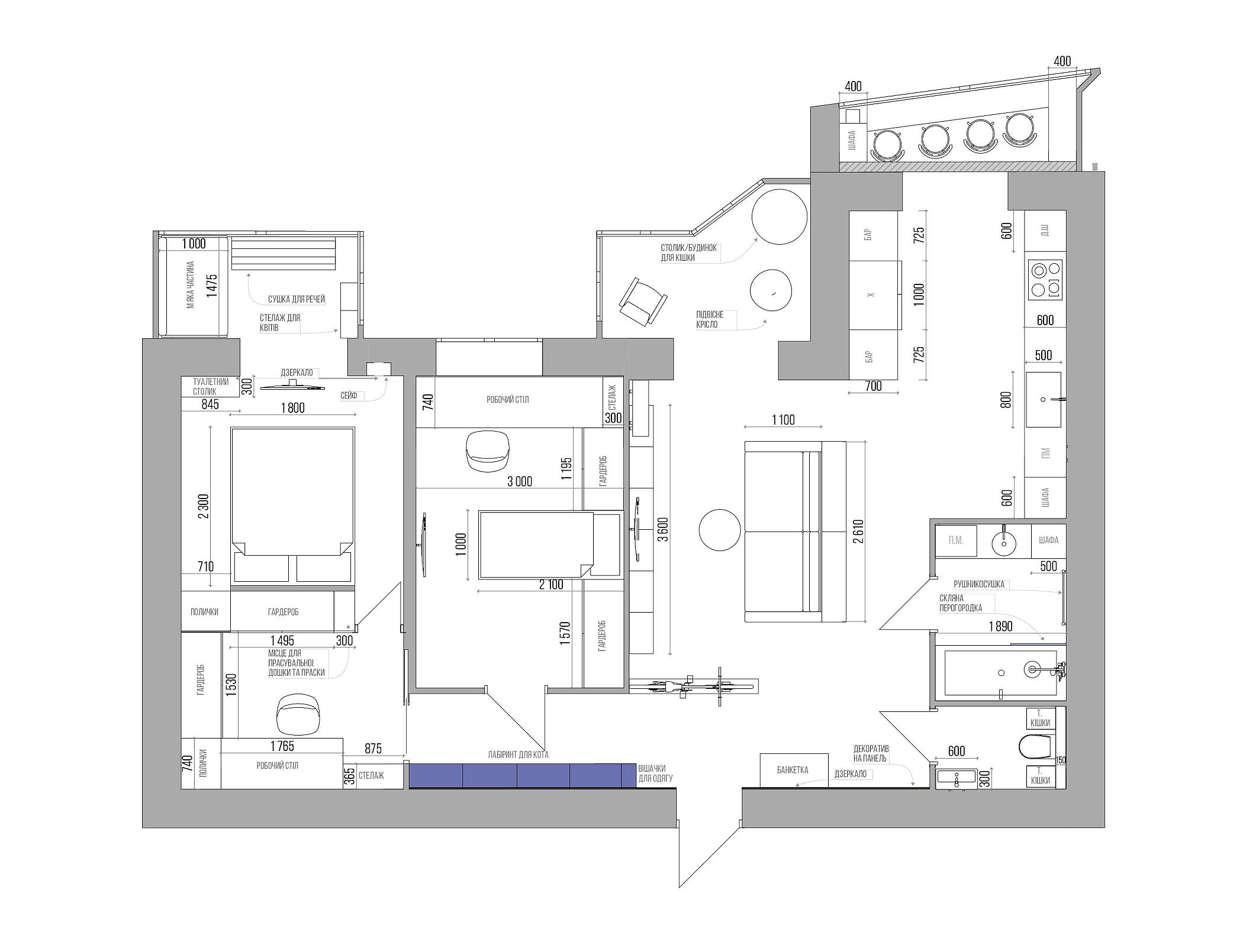
Спальня.

 

Цегляна перегородка, залишили тільки "голим" торець. Кострукція з дерев'яних панелей, які чергуються із скляними смужками. І, по традиції цієї квартири, прихований TV на стелі - автоматичне керування open/close.
Асиметрія з боків ліжка: по одну сторону розміщений стелаж, по іншу - вхід в офіс/гардероб.
Зона відпочину і сушіння речей включні.

 

Санвузол і ванна.

 

Каміння, кераміка, дерево, чорна сантехніка. Ніби все просто, але надзвичайно незвично.
Навіть, для улюбленця 2 місця, аби "сходити по справах".

Декоративна перегородка створюється не тільки завдяки панелям та флористиці. У нашому випадку між коридором та вітальнею брутальна декорація - ретро мотоцикл.

 

Передпокій/Коридор.

 

Такий простий матеріал, як USB, можливий в оздобленні стін у вигляді панелі. Лінія ламінату переходить у вертикаль на стіні. Трав'яний колір доповнює глибоку бірюзу фарбованих стін.
Лабіринт для поважного кота та приховані двері і ручки на них не відволікають від загальної геометрії простору. Діагональ перехідної Вітальня-Коридор "викреслена" як на стелі, так і на підлозі.
Простір нагадує геометричний малюнок, який не припускає розхитанності, а навпаки підкреслює, що це чітко продумане у деталях житлове приміщення.
Пуф не заважає проходу - опускається при потребі.
У загальному інтер'єр фінальнував у стадії нестандарт. Сучасний з вінтажними акцентами.

Чайка