Admin.Court
Назад

Admin.Court

  • Локація: м.Хмельницький
  • Рік: 2019
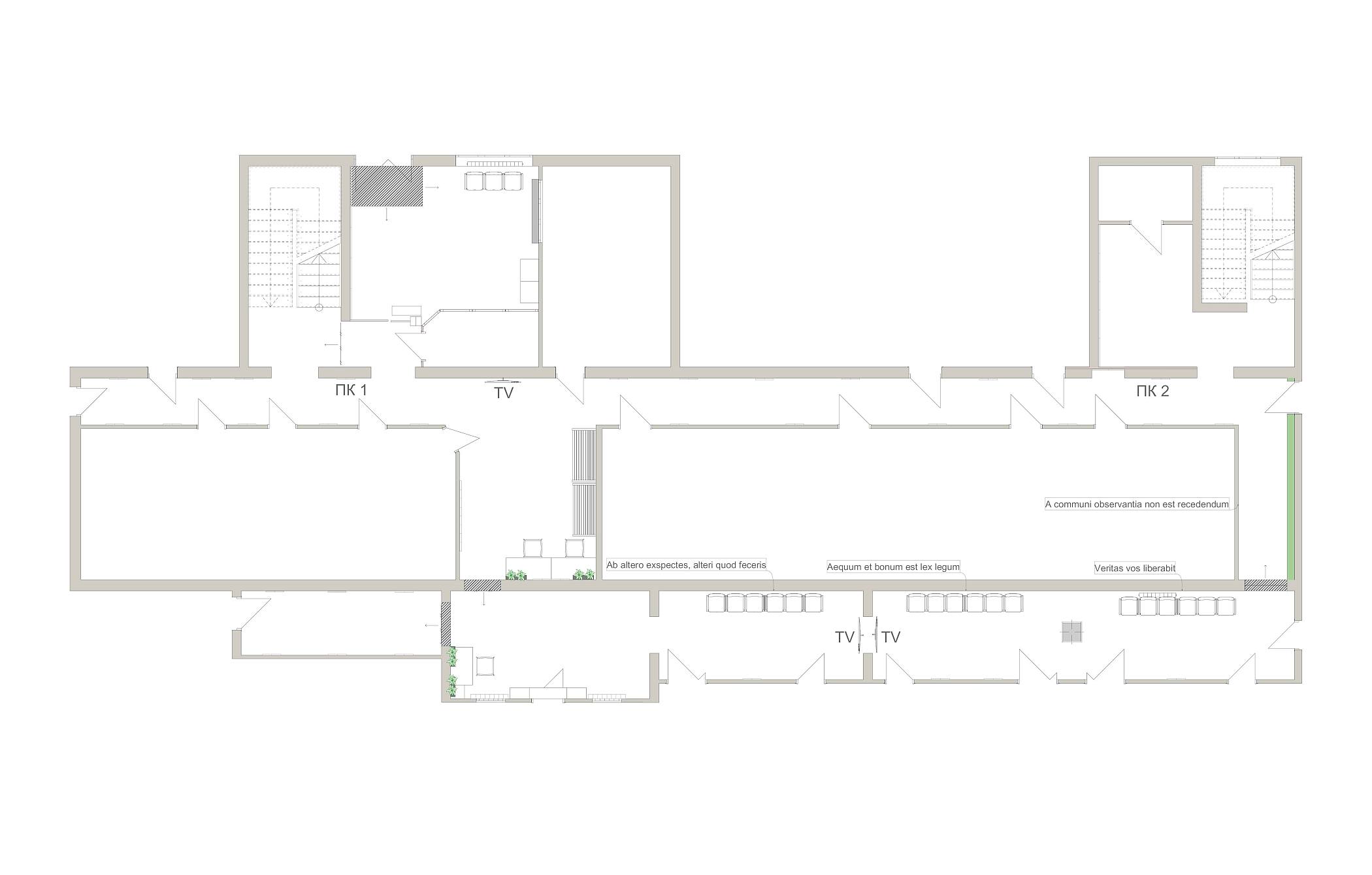
  • Дизайн концепція інтер'єру для державної установи. Розробити редизайн усіх основних прохідних приміщень.
  1. Вхід комфортний у логістиці пересування клієнта та його очікування.
  2. Ергономічні робочі столи для комфортного заповнення документації. Флора компенсує відсутність вікон у коридорах.
  3. Для людей з обмеженими фізичними можливостями розробили пандус при центральному вході та окрім номерів підписали кабінети шрифтом Брайля.
  4. Декор на стінах у формі плит з натуральних матеріалів. Написи на латині та арт-об'єкти, які створюють комукацію клієнта із простором.
  5. Поєднання сучасної Лаконічності з мудрою та справедливою Класикою.
Admin.Court